Geldrop

Huis Smelt (1969-1971)

Ger Smelt OD205
Jaren 70

Een industrieel huis van glas en staal

Huis Smelt is gelegen aan een knooppunt van wegen in het Brabantse Geldrop onder de rook van Eindhoven. Het is gebouwd door de architect H.G. (Ger) Smelt voor zichzelf, zijn vrouw en kinderen aan een doorgaande weg, Helze 1. Het is een opvallende verschijning door het kenmerkende silhouet van stalen H-balken met daartussenin een ranke glazen doos.

 

Voor wie zijn klassieken goed kent is het direct herkenbaar als een variatie op het beroemd geworden ontwerp van Ludwig Mies van der Rohe, het Farnsworth House in Illinois (VS). De constructie van Huis Smelt is vergelijkbaar, maar er zijn ook verschillen. Zo heeft het huis van Mies van der Rohe een dakoverstek aan beide kopse kanten, terwijl Huis Smelt alleen een overdekt terras heeft aan de zuidkant. En het heeft een aantal geheel eigen en speelse elementen.

 

 

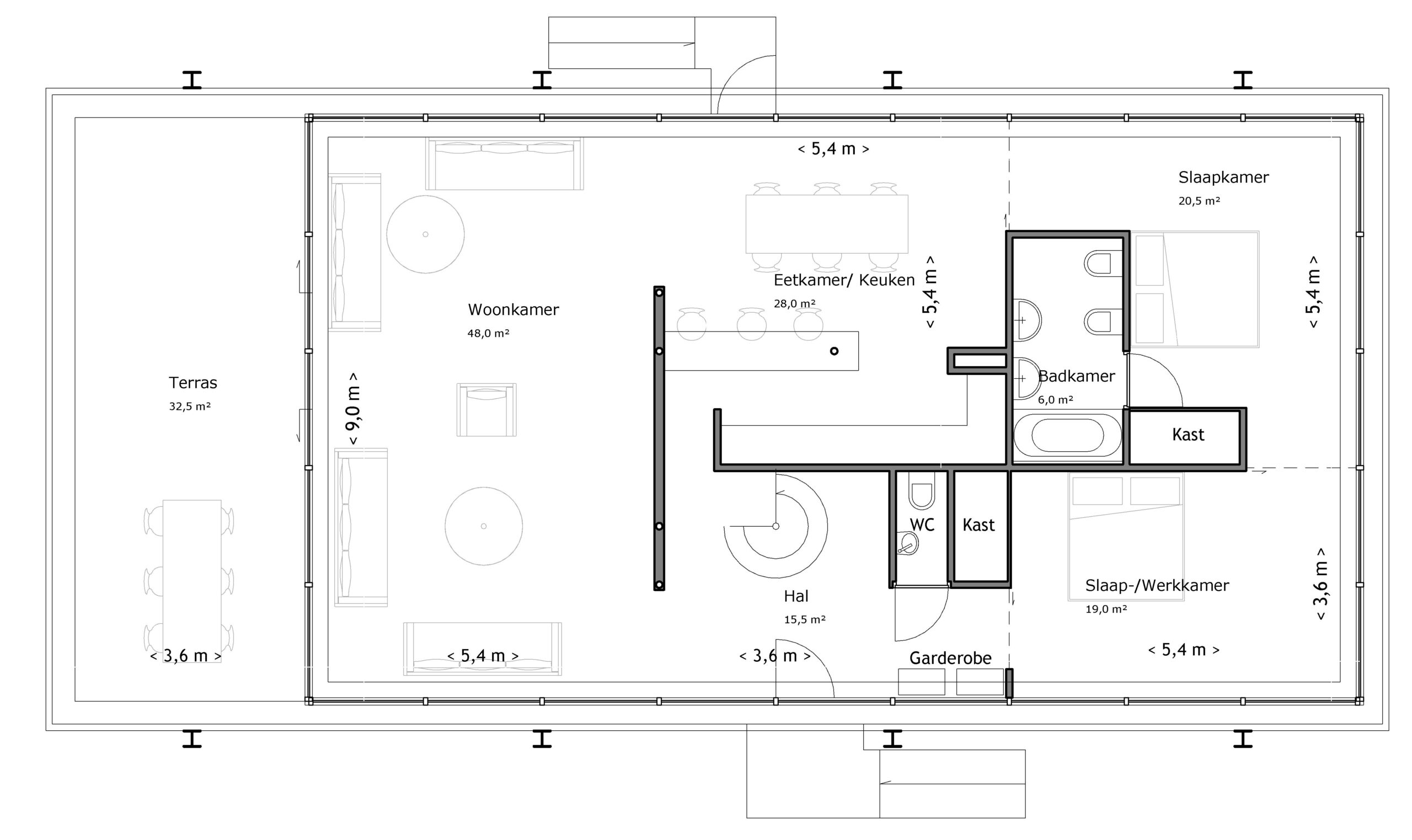
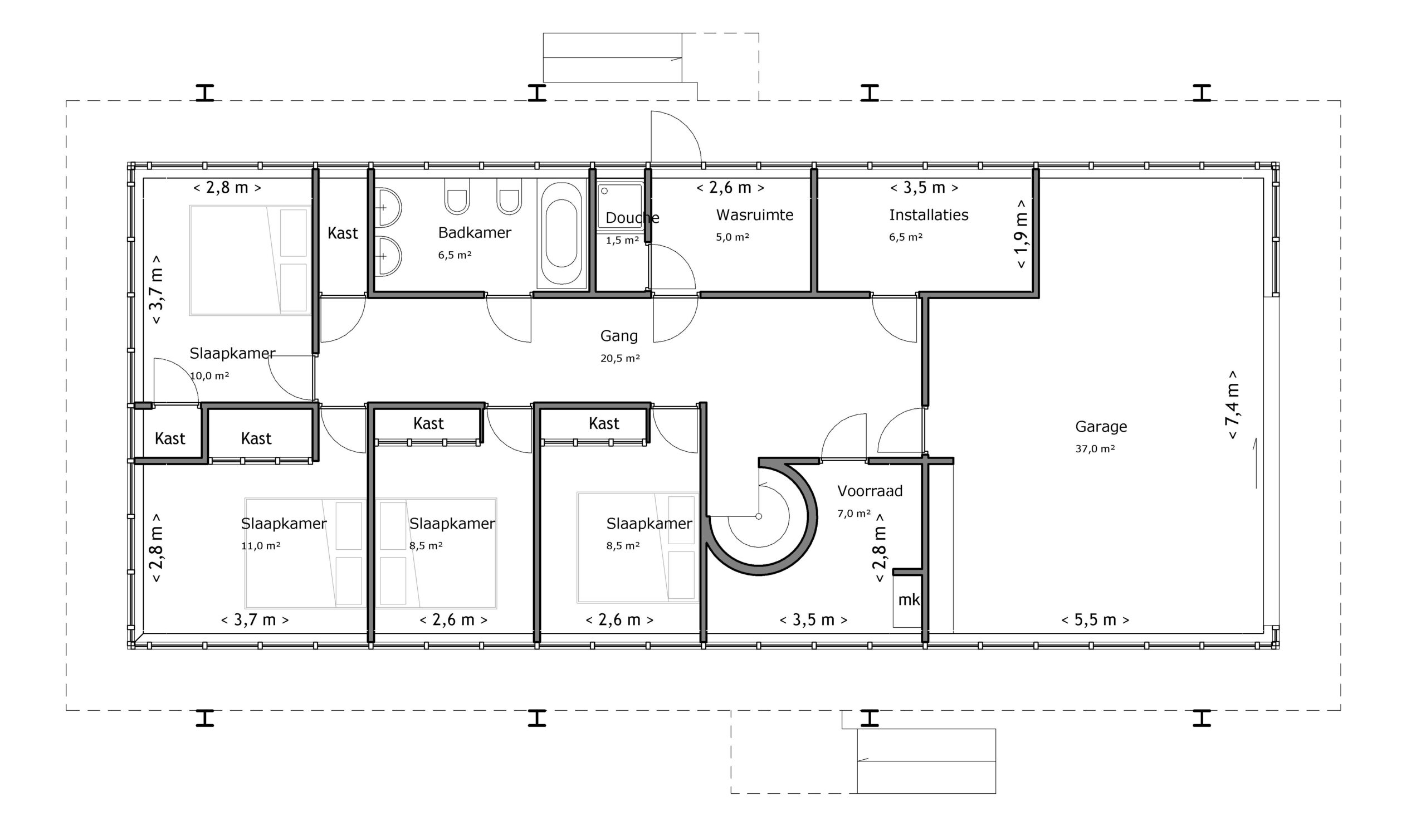
Het hoofdvolume is opgetild boven het maaiveld (circa 1.75 meter), maar ‘zweeft’ niet, zoals Farnsworth House dat wel doet, want het heeft een souterrain. De verdieping van Huis Smelt omvat een geïntegreerde woonruimte, keuken, twee slaapruimtes en sanitair. Het onderste niveau is lager en half ingegraven. Daar bevinden zich vier slaapkamers, sanitair, wasruimte, voorraad, installaties en een garage. De inbouw bestaat uit stalen systeemwanden, schuifwanden en ruimtescheiders die het zicht open houden over de vloer en langs het plafond.

 

 

Het huis is een duidelijke getuigenis van de industriële, technisch geavanceerde architectuur van het bureau waarbij Smelt was aangesloten: OD205 in Delft.

Huis Smelt gezien naar de voorgevel aan de oostzijde.

Oude Delft 205

Architectenbureau OD205 is van oorsprong een vooroorlogs bureau dat in de jaren zestig groot is geworden. Het is een voorbeeld van het werken volgens het principe van collectief auteurschap wat kenmerkend is voor veel naoorlogse bureaus. Vanaf 1964 heette het: Van Embden, Roorda van Eysinga, Smelt, Wittermans, Choisy NV naar de toenmalige directeuren.

 

De naam werd in 1969 veranderd in OD205 naar het adres Oude Delft 205 waar het was gevestigd. Het bureau geniet faam als exponent van het Internationale Modernisme en richtte zich in de architectuur onder meer op de industrialisatie van het bouwproces. Het bureau hield zich in de jaren vijftig en zestig  bezig met de uitbreidingsplannen van Wageningen, Enschede, Delft, Lelystad en Zwolle, het ziekenhuis en de Medische faculteit Dijkzigt in Rotterdam en bouwde aan de Campussen van de TU Eindhoven en Enschede.

Het garderobemeubel naast de voordeur met ronde spiegel.
De stalen spiltrap met aluminium omkasting.
Het honingraadrooster waarachter TL-verlichting.
De ronding van de leuning van de trap met weerspiegeling.

Oceaanstomer

Een betonnen tuinpad aan de noordoostkant van het huis leidt naar de hoofdingang via een stalen trap met ronde relingen als of je via een loopplank een Oceaanstomer gaat betreden. Ook de witte, metalen pui van de entree wekt door het materiaal en de ronde ‘patrijspoort’ die associatie op.

 

De ronde vorm is een terugkerend, speels element dat ook in het interieur op verschillende plaatsen is te zien. De entreehal wordt verlicht door een rond daklicht met een gele bekleding aan de binnenzijde. Deze is boven de ronde, uit stroken aluminium opgebouwde, balustrade van de stalen spiltrap geplaatst, die naar het souterrain leidt. De witte, met kunststof beklede reling spiegelt half rond in de bronskleurige, metalen wand waarachter zich de keuken bevindt. Ook de spiegel bij de kapstok is rond. Deze is opgehangen aan het verchroomde frame van het garderobemeubel waarin ook een ladekast is opgenomen.

 

De entreehal staat in open verbinding met de keuken, gelegen aan de westkant en de woonruimte aan de zuidzijde van het huis, die grenst aan het overdekte terras. In het dakoverstek bevindt zich ook een rond daklicht met goudgele lining. De slaapkamer van Ger Smelt aan de voorkant en de slaapkamer van zijn vrouw met badkamer daar achter, zijn gelegen op het noorden; zijn vrouw sliep west, hij zag de zon opkomen. De kamers kunnen met schuifdeuren van elkaar en van de rest van de leefruimte worden afgesloten. De badkamer en de wc zijn de enige door vier vaste wanden afgesloten ruimtes op de verdieping. De overige ruimte heeft een zogenaamde open of vrije plattegrond zonder dragende wanden, mogelijk gemaakt door de stalen constructie.

De American kitchen met barmeubel en ruimtescheider.
Het crèmekleurige plaatstalen kastfront met RVS aanrecht.
Folder American kitchens 1966.
Folder American kitchens 1966.

American kitchens

In het huis zijn stalen kasten en een industriële keuken geplaatst van de fabrikant Oda, leverbaar via Vihamij, een technische groothandel. Oda was een Nederlandse fabrikant van staalproducten en ovens in Sint-Oedenrode die in 1967 fuseerde met Ahrend. In de jaren ’60 begon ‘Oda Staalwerk en Ovenbouw’ met de productie van modulaire keukens onder de naam American kitchens. Het begrip American kitchen is oorspronkelijk geen merknaam, maar een keuken van het Amerikaanse open keuken concept, bedoeld om de scheiding tussen keuken en eetkamer/woonkamer op te heffen. Zo kon het keukenwerk efficiënter worden georganiseerd en werd de relatie met het gezinsleven vergroot. American kitchens was gebaseerd op het werk van industrieel ontwerper Raymond Loewy.

 

De keuken in huis Smelt is samengesteld uit crèmekleurig geëmailleerde stalen kastjes met afgeronde hoeken en aluminium handgrepen. Het aanrechtblad en de spoelbakken zijn van het merk Franke en van roestvrij staal en er is een mechanische wasemkap geplaatst die in hoogte verstelbaar is.

 

Het barmeubel met onderkast is gemaakt van wit geschilderd hout en staat op dezelfde roodbruine poten als de metalen ruimtescheider tussen keuken en woonruimte. Het blad is ingetekend op de bouwtekeningen die bij het huis worden bewaard, maar is waarschijnlijk later een keer opnieuw bekleed.

Zicht naar de woonruimte met terras op het zuiden.
Restant van het plaatstalen plafond in de wijnkelder.
Entreehal met rond daklicht en spiltrap.
Detail van het plaatstalen plafond in het souterrain.

Modules van 90 x 90 en 45 x 45 cm

Het ontwerp van het huis is gebaseerd op een basis maat van 90 x 90 centimeter. Dit geeft het voordeel van een systematische werkwijze en schaalbaarheid die bijdragen aan de harmonie van het geheel. Op de verdieping ligt een aaneengesloten vloer van wit-grijze marmeren tegels van 90 x 90 centimeter. Daardoor ontstaat een grote mate van eenheid en ruimtelijkheid, zeker als de drie schuifdeuren open staan.

 

Oorspronkelijk had het huis een metalen plafond, bestaande uit geperforeerd metalen platen van 45 x 45 centimeter met steenwol erachter. Het was een modulair systeem dat door Hunter Douglas op de markt werd gebracht. Een viertal panelen werd geplaatst in een profiel en met kunststof noppen aan een houten raster bevestigd. Dit plafond had akoestische kwaliteiten en sloot aan bij de industriële uitstraling van het huis.

 

Al tijdens de korte periode dat Smelt het huis bewoonde – hij is na drie jaar overleden – heeft hij het buitenplafond van het terras  al laten vervangen, omdat het begon te roesten en er lelijke vlekken ontstonden. De huidige eigenaren hebben het plafond binnen vervangen door een houten akoestisch plafond om dezelfde reden. Ook plaatst Smelt al snel de buitenzonwering.

Zicht langs de oostgevel vanuit de voormalige slaapkamer van Ger Smelt.
Zicht vanuit de voormalige slaapkamer van mevrouw Smelt met rechts de badkamer en vaste kast met spiegel.
Zicht vanuit de slaapkamer van mevrouw langs de westgevel.
De hoekramen bestaan uit platen glas tegen elkaar aan.

Veranderingen

Functieveranderingen zijn relatief gemakkelijk door te voeren omdat zowel de verdieping als het souterrain beschikken over een badkamer. De slaapkamer van Ger Smelt is momenteel in gebruik als kantoor, hetgeen handig is in geval van zakelijk bezoek vanwege de ligging bij de voordeur en het toilet in de entreehal. De slaapkamer van mevrouw Smelt is tegenwoordig hobbykamer en beneden zijn voldoende slaapkamers beschikbaar voor diverse functies.

 

De huidige eigenaren hebben behalve het plafond op de verdieping ook de schuifpui naar het terras vervangen. Verder hebben zij een aanpassing gedaan in het souterrain aan beide slaapkamers aan de zuidzijde. De kopse kant van de gang, die overlangs in het midden van het grondplan ligt, is aangepast om de oostelijke slaapkamer te vergroten. Daartoe werden de tussenwand tussen de slaapkamers en de toegangsdeuren verplaatst. Een vaste kast en een inloopkast werden opgeofferd. Het modulaire systeem van de wanden en vaste kasten leende zich daar goed voor.

 

Middengang met systeemwanden in het souterrain.
De ‘brandweertrap’ vanuit het souterrain.

Industrieel interieur dat zijn gelijke niet kent

Het statement dat Smelt wilde maken met zijn industriële huis gold niet alleen de buitenkant, waarbij hij had gekeken naar het bekende huis van Mies uit 1951, gemaakt van staal en glas. Hij trok de lijn van dat huis door naar zijn eigen tijd en maakte er een industriële binnenkant bij die voor zijn tijd zeer innovatief was en zijn gelijke in Nederland niet kent.

 

Interview met de bewoners: klik hier!

 

Tekst: Barbara Laan

Foto’s: Bert Muller

Copyright: SHI/BMbeeld 2026

 

 

Bronnen

Collectie eigenaren Huis Smelt (keukenfolders en bouwtekeningen)

D. van Hoogstraten, Villa’s in Nederland. Onder architectuur gebouwde huizen 1900-2000, [Alphen aan de Rijn] 2002

Plattegrond 1ste verdieping.
Plattegrond souterrain.

Meer info over dit huizenportret?

Stuur ons een mail