Oss

Huis Peterse (1967-1968)

Jan Peterse
Jaren 60

Maximale ruimtelijkheid met minimale middelen

 

Jan Peterse ontwierp voor zichzelf en zijn gezin een vrijstaand woonhuis met garage en tuinmuur in de stijl van de ‘Bossche School’. Het huis werd opgeleverd in 1968. Het staat aan de boomrijke Burgemeester van den Elzenlaan 16 in het vooroorlogse villapark dichtbij het centrum en het NS-station van Oss.

 

Het doel dat Peterse voor ogen stond was om een zo eenvoudig mogelijk huis te ontwerpen en met minimale middelen een maximale ruimtelijkheid te bereiken. Dit resulteerde in een open plattegrond op de begane grond, geleed door twee muurdammen en enkele houten wanden. Door een heel bewuste plaatsing en onderlinge afstemming van de gemetselde muurdammen en houten scheidingswanden zijn diagonale zichtlijnen ontstaan, die essentieel zijn voor de beleving van de ruimte.

 

De gekozen maatverhoudingen van het plastische getal, het driedimensionaal verhoudingenstelsel van de Bossche School, maken dat de ruimten nauw op elkaar zijn betrokken en sterk als een samenhangend geheel worden ervaren.

 

Achtergevel met galerij en tuin naar ontwerp van Pieter Buijs.
Achtergevel met links de galerij en de garage.

Bossche School

 

Jan Peterse (1927-2021) volgde vanaf 1963 samen met zijn compagnon Piet van Lierop (1928-2007) de bijeenkomsten van de Cursus Kerkelijke Architectuur. Zij waren op zoek naar duidelijke uitgangspunten voor hun architectuur en vonden die bij de Bossche School. Tijdens de Tweede Wereldoorlog waren in Zuid Nederland honderden kerkgebouwen beschadigd of compleet verwoest. Het gemis aan een gedegen opleiding voor kerkenbouwers was voor het bisdom ’s-Hertogenbosch, de toenmalige TH Delft en de RK Leergangen Tilburg aanleiding om een postacademische cursus voor kerkelijke architectuur op te zetten. Al heel snel bleef de opleiding niet beperkt tot kerkelijke architectuur, maar werden ook kantoren, scholen en allerlei soorten woningen onderwerp van studie en praktijk. De bijeenkomsten vonden plaats tussen 1946 en 1973 in ’s-Hertogenbosch, vandaar de benaming Bossche School.

De zijkanten van de muuropeningen zijn later wit geschilderd.

De grondslag voor goed ontwerpen

 

De benedictijner monnik-architect Hans van der Laan (1904-1991) verzorgde de theoretische onderbouwing en was de spil van de cursus. Hij ontwikkelde een driedimensionaal verhoudingensysteem, dat hij het  plastische getal noemde.

 

Volgens Peterse boden de bijeenkomsten een werkelijke grondslag voor goed ontwerpen, omdat ze gingen over de grondbeginselen van de architectuur: over oriëntatie, structuur en goede verhoudingen.

 

In 1961 was hij samen met Piet van Lierop architectenbureau Peterse en Van Lierop begonnen. Vanaf 1965 pasten zij het plastische getal toe in al hun werk. Naast hun eigen woonhuizen, ontwierpen zij scholen, een kerk, kantoren, complexmatige sociale woningbouw, wijkcentra, particuliere woonhuizen en woon-zorgcomplexen, voornamelijk in Oss en omgeving. In 1993 ging Van Lierop met pensioen en zette Peterse samen met zijn zoon Kees het bureau tot 2000 voort onder de naam Peterse Architectuur.

 

De gesloten voorgevel met het fries van vier smalle vensters.

Geen compromissen

 

Het eigen woonhuis van Jan Peterse werd kort na de oplevering in 1969 gepubliceerd in Het Bouwkundig Weekblad. Hij had bij het ontwerpen, afgezien van de stedenbouwkundige voorschriften, een grote vrijheid in de toepassing van de ideeën van de Bossche School, omdat hij geen compromissen hoefde te sluiten met een opdrachtgever.

 

Op een rechthoekige plattegrond trok Peterse een naar de straat toe gesloten kubusvormige bouwmassa op van twee bouwlagen onder een plat dak. Het exterieur is sober en zonder enige vorm van versiering. De voorgevel is vrijwel gesloten met zijn smalle fries van vier vensters op de verdieping. De opeenvolging van het tuinmuurtje, de grindtuin met de zes leilinden en de stoep voor de dubbele voordeur, verleent de voorgevel  een sobere monumentaliteit. De achtergevel, waar een grote glazen pui met dubbele deuren zicht geeft op de tuin, wordt juist gekenmerkt door openheid.

 

Mede omdat maar een relatief klein oppervlak mocht worden bebouwd, besloot de architect alleen de slaap- en sanitaire ruimten in het huis af te scheiden, opdat de beschikbare ruimte zo optimaal mogelijk kon worden benut. Omwille van de bruikbaarheid en de leesbaarheid van het huis bracht hij een ruimtelijke en plastische geleding aan. Dit maakte een eenvoudige constructie mogelijk.

 

Centraal in de woning plaatste Peterse een stelling bestaande uit twee gemetselde muurdammen waarop een over de volle breedte van het huis doorlopende betonbalk rust. De stelling herhaalt zich op de verdieping. Hierdoor ontstaat, zowel beneden als boven, een dwarsgeplaatste ‘gang’ met openingen in de wanden. De betonbalken dragen respectievelijk de houten verdiepingsvloer en de houten balklaag van het platte dak. De overige afscheidingen zijn door middel van houten wanden gerealiseerd.

De entreehal, gezien richting een van de muurdammen in de woonruimte.
De entreehal, gezien richting de voordeur en de wand van de wc en meterkast.

Sterke licht-donker effecten

 

De architect zei hier zelf over: ‘Ik wilde een heel eenvoudig huis maken. Een grote ruimte waar ik met muurdammen een geleding in aanbracht. Voor de grondverhouding van de plattegrond koos ik 6:7. Ik wilde namelijk geen vierkant maken en dan bepaalt het plastische getal dat de ene maat tenminste 1/7 groter of kleiner moet zijn dan de andere. De plattegrond heb ik vervolgens met twee gemetselde muurdammen geleed in twee ruimten van 3:7. Een daarvan is helemaal opengelaten voor het wonen. In de andere heb ik met een lange houten wand en enkele dwarsschotten een gebied afgebakend voor een open hal, een sanitaire ruimte en een open keuken. De woonruimte strekt zich voorbij de twee muurdammen uit tot aan de lange houten wand en vloeit over in de open hal en keuken. Het huis is dus één ruimte gebleven, waarvan alleen heel specifieke functies met houten wanden zijn afgescheiden. Op de verdieping is op dezelfde manier gewerkt. Het resultaat heb ik besproken met Dom van der Laan. Die vond het uitgangspunt goed en was gecharmeerd van de sterke licht-donker effecten. Later is het nodig gebleken om toch iets meer licht in het huis te laten komen.’

De diagonale zichtlijn vanuit de entreehal richting de ‘gang’ en de woonruimte.
De ‘gang’ en de woonruimte, gezien vanuit de keuken met rechts de galerij naar de tuin.

Ruimten in open verbinding

 

De entreehal in de linker zuidoosthoek van het huis en de keuken in de rechter noordoosthoek staan in open verbinding met de dwars geplaatste ‘gang’ en de woonruimte daar achter. Ze zijn van elkaar gescheiden door een utilitair cluster met wc, meterkast, verwarmingsruimte en provisiekast. De woonruimte strekt zich over de volle breedte van het huis uit tot aan de achtergevel die uitzicht biedt op de tuin. Hier bevindt zich naast de grote pui met openslaande deuren ook de achterdeur die toegang geeft tot een overdekte galerij. De galerij grenst aan het terras en verbindt het huis met de garage. De relatief open achtergevel en de galerij bieden een optimaal contact met de tuin.

 

De houten trap staat vrij in de ruimte en in open verbinding met de eerste verdieping. Aan de voorzijde van het huis liggen de slaapkamers voor de drie kinderen en de badkamer, elk met een venster. Aan de achterzijde bevinden zich de ouderslaapkamer en een zithoek; elk  ter grootte van de helft van de leefruimte beneden en elk met twee vensters. De ouderslaapkamer is tweemaal zo groot als een kinderslaapkamer.

 

De deuren van de slaapkamers hebben kozijnen die niet in, maar op de houten wanden zijn bevestigd zodat de deuren geheel open kunnen worden geklapt en ook boven alle ruimten met elkaar in verbinding kunnen staan. De aanwezige vaste kasten hebben net als de wc en de kasten beneden blinde deuren die zijn opgenomen in de houten wanden.

De trap en de houten wanden zijn groenblauw gebeitst.
De trap staat vrij in de open woonruimte.

Materialen en kleuren

 

De buitengevels zijn gemetseld met blonde baksteen, de gevels aan de binnenzijde en de muurdammen zijn opgetrokken uit MBI betonstenen met een open structuur, zogenaamde schoonwerkers, evenals het utilitaire cluster met de badkamer erboven. De gewassen grindvloer beneden is gestort door een terrazzobedrijf. Alle wanden zijn samengesteld uit vurenhouten planken met koperen nagels, die in een regelmatig patroon zijn gespijkerd. De kleuren van de groenblauwe wanden en de grijsbruine vloeren zijn bepaald door Wim van Hooff, kunstschilder en kleurenadviseur van de Bossche School.

De diagonale zichtlijn vanuit de woonruimte naar de ‘gang’ en de entreehal.
De vurenhouten planken van de wanden zijn met koperen nagels gespijkerd.

Latere wijzigingen

 

Jan Peterse bleef zoeken naar optimalisering van zijn ontwerp. Hij was dan ook niet bang om veranderingen aan te brengen, wanneer die volgens hem noodzakelijk waren vanuit het praktisch gebruik of voortschrijdend inzicht. Zo is de oorspronkelijke achtertuin eind jaren zeventig gewijzigd naar ontwerp van tuin- en landschapsarchitect Pieter Buijs (1923-2018), die vaak samenwerkte met Bossche Schoolarchitecten. Toen zijn ook de één meter hoge, gemetselde muurtjes, die het terras omzoomden, gesloopt. Bij nader inzien vond Peterse dat de muurtjes om het terras het stukje tuin erachter tot een restruimte reduceerden. Vandaar dat hij Buijs om een tuinontwerp vroeg dat op zich zelf kon staan, maar ook een relatie aan ging met het huis.

 

In 1977 zijn er door de architect met respect voor de oorspronkelijke maatverhoudingen enkele gevelopeningen met stalen ramen toegevoegd en is de keuken aangepast. Er is toen ook vergunning verleend voor een uitbreiding over de volle breedte van de achtergevel, maar deze is niet gerealiseerd.

 

Verder zijn in 1999 uit het oogpunt van energiebesparing een aantal oorspronkelijke stalen profielen met enkel glas vervangen door aluminium exemplaren met isolatieglas. Toen is tevens het schoon metselwerk binnen lichtgrijs gesausd evenals het vurenhouten plafond beneden, de vloer boven en de zijkanten van de muuropeningen aan de buitenzijde. Door deze laatste ingreep komt niet alleen meer licht binnen vanwege reflectie, maar wordt tevens de dikte van de muur als geheel ervaren, omdat deze binnen en buiten dezelfde kleur heeft. Dit is van belang in de theorie van het plastische getal, waarbij de muurdikte een belangrijke rol speelt.

De gang op de verdieping met rechts de zit/speelhoek.
Doorzicht vanuit de ‘gang’ naar de ouderslaapkamer.

Het plastische getal en de muziek

 

In Huis Peterse beantwoorden zowel de afmetingen van de ruimten als die van de wanden aan een doorlopende reeks van maten die elkaar opvolgen in een vaste verhouding, die van het plastische getal.

 

Hans van der Laan vergelijkt in zijn paper over de abdij Roosenberg in Waasmunster het systeem van samenhangende maten en verhoudingen met intervallen in de muziek, die met elkaar harmoniëren door eenvoudige getalsmatige verhoudingen: Ruimtelijke groottes zijn kenmerkend verschillend van elkaar, als hun afzonderlijke lineaire afmetingen bepaald worden door de vaste grondverhouding, die voortkomt uit de telbaarheid van het plastische getal. Deze verhouding bedraagt bij benadering 3 : 4. En vergelijkbaar met de muziek is er ook in onze visuele wereld sprake van een soort octaven, reeksen van acht maten die bepaald worden door de som en het verschil van twee willekeurige, opeenvolgende maten in die grondverhouding van ca. 3 : 4. De uiterste van die acht maten verhouden zich dus als ca. 1 : 7. De onderlinge verhoudingen binnen zulke opeenvolgende matenstelsels bepalen de specifieke vormgeving van de architectuur en de grenswaarden ervan verwijzen naar steeds terugkerende overgangselementen in de totale ruimtelijke beleving’.

Doorzicht naar een van de drie kinderslaapkamers.

Het huis als rustplaats voor de geest

 

Peterse heeft in zijn huis de verhoudingen van het plastische getal toegepast om de ruimte te geleden en in te delen, maar ook om de vensters in de juiste verhouding in de gevels te plaatsen en om de verhoudingen en de plaatsing van de meubels te bepalen. In woonhuis Peterse zijn de twee muurdammen niet alleen constructief noodzakelijk, maar ook visueel nodig om de ruimte in te delen en meetbaar te houden en daardoor als prettig te ervaren.

 

De verhoudingen van het plastische getal van Dom Hans van der Laan vormden de basis in het werk van Bossche School architecten zoals Nico van der Laan, Jan de Jong, Fons Vermeulen, Frans Ruijs, Gerard Wijnen, Piet van Lierop en Jan Peterse. De overeenkomst tussen hen is behalve het plastische getal, dat ruimtelijk wordt vertaald in open plattegronden met kolomstellingen en dikke muren, ook het gebruik van traditionele materialen en het specifieke vormenidioom. Dit bestond uit schoon metselwerk, diepliggende gevelopeningen, betonnen lateien en gevelbanden, gewassen grindvloeren en houten wanden.

 

Hoewel de overeenkomst tussen de Bossche Schoolarchitecten opvalt, zijn ook individuele verschillen aanwijsbaar. Belangrijker dan de concrete traditionele materialen en details was voor Jan Peterse het creëren van een binnenruimte met zo eenvoudig mogelijke middelen en met goede verhoudingen, een ruimte die door mensen als prettig wordt ervaren. Hij benadrukte daarmee de menselijke maat en beleving van zijn architectuur.

 

In dit verband haalde hij de Latijnse inscriptie aan die rondom de voordeur van Huis Jan de Jong staat gebeiteld en die vertaald luidt: ‘Het betaamt een wijs architect een gebouw te ontwerpen en de ruimten te ordenen tot onderdak voor het lichaam en te bereiden tot rustplaats voor de geest.’

 

Interview met de eigenaar: klik hier!

 

Tekst: Hettie Peterse

Foto’s: Bert Muller

Copyright: SHI/BMbeeld 2025

 

 

Bronnen

Hooff, H. van (red.), Bonte Grijzen, De kleuren van Wim van Hooff en de Bossche School, Rotterdam 2022

Peterse, H en K. Peterse, Bossche School in Oss, Berghem 2011

Peterse, J., Eigen woonhuis te Oss in: Bouwkundig Weekblad 87e jaargang, 5 augustus 1969, Amsterdam, 15/340-341

Voet, C. en H. van der Laan, ‘The elemental House around the Table: House Jan Peterse 1968’ in: A House to live with, 16 variations by Dom Hans van der Laan and his companions, Zürich 2025, 236-251

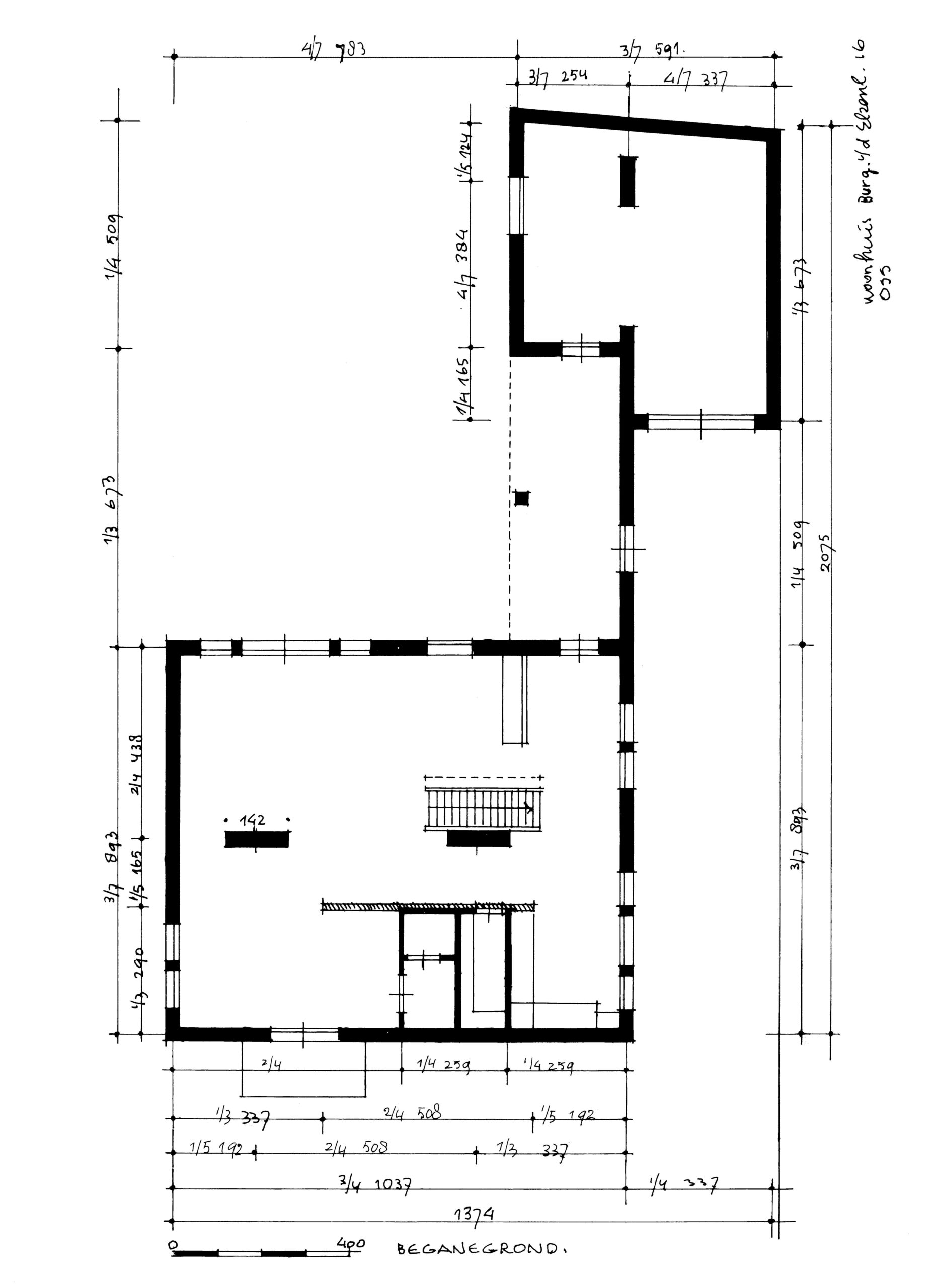
Plattegrond begane grond.
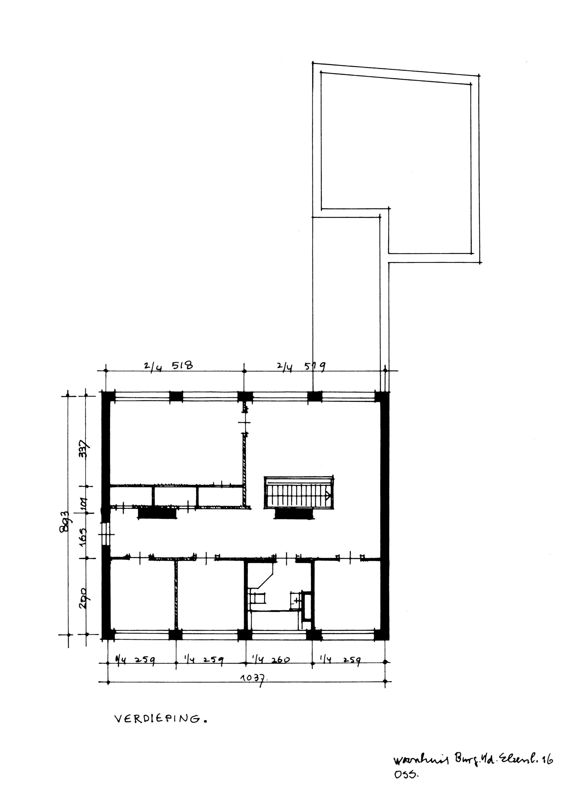
Plattegrond eerste verdieping.

Meer info over dit huizenportret?

Stuur ons een mail